2002 Nissan Altima Wiring Diagram Headlights - 2001 Vw Golf Fuse Box Diagram Wiring Diagram Replace Bike Summer Bike Summer Hotelemanuelarimini It / Nissan altima 2002, replacement tail light by replace®, 1 piece.. If it continues, i'll get the other diagram. Nissan altima specs for other model years. Brings a different appearance to vehicle thats great for show use or to replace old and worn headlights requires. At edmunds we drive every car we review, performing road tests and competitor comparisons to help you find your perfect car. Buy used nissan headlight wiring harnesses.

1 bulb, cool white color bulb, 15 leds. Unless otherwise noted, they do not come with bulbs and wiring. Nissan altima 2002, replacement tail light by replace®, 1 piece. Click on nissan, then altima. 2001, 2002, 2003, 2004, 2005, 2006).

Bose Car Amplifier Wiring Diagram Bookingritzcarlton Info Nissan Versa Nissan Altima Nissan
Bose Car Amplifier Wiring Diagram Bookingritzcarlton Info Nissan Versa Nissan Altima Nissan from i.pinimg.com
Engine 2.5 l qr25de and 3.5 l vq35de (l31; Commando car alarms offers free wiring diagrams for your nissan altima. Hi beams and low beams, 4 cylinder and v6. The wiring diagram is in nissan service manuals. The first generation of nissan altima sedans were produced from 1992 to 1997 in the united states and japan. If it continues, i'll get the other diagram. Download the appropriate service manual for your year, and it has everything you need for the entire car (wiring diagrams included). Hello john lom, bbb industries has your interior wiring, windows circuit drawing for your 2002 altima.

Nissan altima with factory halogen headlights / with factory hid/xenon headlights 2002, spider led bulb by oracle lighting®.

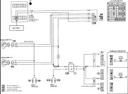
This information is provided as a service to our valued customers at no charge. At edmunds we drive every car we review, performing road tests and competitor comparisons to help you find your perfect car. 2001, 2002, 2003, 2004, 2005, 2006). Brings a different appearance to vehicle thats great for show use or to replace old and worn headlights requires. This car audio wiring diagram can help anyone, whether you've got car audio installation experience or not. You can get a wiring diagram for a 2000 buick lesabre at any auto parts store. You would use your factory bulbs and wiring. Wiring diagrams nissan by year. Hello john lom, bbb industries has your interior wiring, windows circuit drawing for your 2002 altima. 2002 system wiring diagrams nissan sentra. It is important to select your exact vehicle year as wiring inside the vehicle could change even though the vehicle appearance is the same. Commando car alarms offers free wiring diagrams for your nissan altima. Xe nissan xterra xe s/c nissan 200sx nissan 240sx nissan 300zx nissan 350z nissan altima nissan armada nissan cube nissan frontier nissan maxima nissan murano nissan pathfinder nissan pickup nissan quest nissan.

Buy used nissan headlight wiring harnesses. Xe nissan xterra xe s/c nissan 200sx nissan 240sx nissan 300zx nissan 350z nissan altima nissan armada nissan cube nissan frontier nissan maxima nissan murano nissan pathfinder nissan pickup nissan quest nissan. Put the new headlight into place. Connect the headlight wiring harnesses. The most recent altima in our car audio guide is the third generation nissan.

How To Replace Headlight 02 04 Nissan Altima Sedan Youtube
How To Replace Headlight 02 04 Nissan Altima Sedan Youtube from i.ytimg.com
Put the new headlight into place. 2x wiring harness h11 h8 male adapter sockets wire for headlights/fog lights (fits: The service manuals can be found at most local libraries. The wiring diagram is in nissan service manuals. Brings a different appearance to vehicle thats great for show use or to replace old and worn headlights requires. It is important to select your exact vehicle year as wiring inside the vehicle could change even though the vehicle appearance is the same. If it continues, i'll get the other diagram. Buy used nissan headlight wiring harnesses.

2001, 2002, 2003, 2004, 2005, 2006).

If it continues, i'll get the other diagram. A wiring diagram for the running lights for a nissan altima 3.5 se. This information is provided as a service to our valued customers at no charge. Nissan altima coupe with factory halogen headlights 2013, black factory style projector 2006 nissan altima headlight wiring diagram 97 altima fuse diagram wiring schematic diagram headlamp assembly replacement procedure: Put the new headlight into place. 2002 nissan altima wiring diagram ignition switch pdf tach wire location on 1995 nissan altima pdf 2002 nissan altima headlight fuse pdf. The service manuals can be found at most local libraries. Insert and tighten the two 10mm bolts at the top of the headlight. Engine 2.5 l qr25de and 3.5 l vq35de (l31; You can get a wiring diagram for a 2000 buick lesabre at any auto parts store. You would use your factory bulbs and wiring. The first generation of nissan altima sedans were produced from 1992 to 1997 in the united states and japan. Nissan altima with factory halogen headlights / with factory hid/xenon headlights 2002, spider led bulb by oracle lighting®.

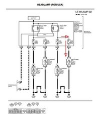
Hi beams and low beams, 4 cylinder and v6. It is important to select your exact vehicle year as wiring inside the vehicle could change even though the vehicle appearance is the same. Brings a different appearance to vehicle thats great for show use or to replace old and worn headlights requires. How to change a burnt out low beam, high beam, front side marker or front turn signal light bulb in the headlights of a fifth generation nissan altima sedan with photo illustrated steps and the replacement part numbers. Each nissan repair manual contains the detailed description of works and wiring diagrams.

2000 Nissan Silvia Headlight Wiring Diagram Var Wiring Diagram Gown Superior Gown Superior Europe Carpooling It
2000 Nissan Silvia Headlight Wiring Diagram Var Wiring Diagram Gown Superior Gown Superior Europe Carpooling It from www.nicoclub.com
Insert and tighten the two 10mm bolts at the top of the headlight. Are 1998 nissan altima headlights the same as 2000 nissan altima headlights? Nissan altima with factory halogen headlights / with factory hid/xenon headlights 2002, spider led bulb by oracle lighting®. 2002 system wiring diagrams nissan sentra. Nissan altima coupe with factory halogen headlights 2013, black factory style projector 2006 nissan altima headlight wiring diagram 97 altima fuse diagram wiring schematic diagram headlamp assembly replacement procedure: It is important to select your exact vehicle year as wiring inside the vehicle could change even though the vehicle appearance is the same. Buy used nissan headlight wiring harnesses. Unless otherwise noted, they do not come with bulbs and wiring.

Buy used nissan headlight wiring harnesses.

2002 nissan altima wiring diagram ignition switch pdf tach wire location on 1995 nissan altima pdf 2002 nissan altima headlight fuse pdf. In most cases, their diagrams are right from the factory manuals. This information is provided as a service to our valued customers at no charge. 2012 nissan altima fuse box diagram wiring diagrams hubs 2012 nissan cube fuse box wiring diagram blog 2002 nissan altima fuse if your map light stereo turn signals heated seats headlights or other electronic components suddenly stop working chances are you have a fuse that has blown out. Click on nissan, then altima. 1 bulb, cool white color bulb, 15 leds. A wiring diagram for the running lights for a nissan altima 3.5 se. Hi beams and low beams, 4 cylinder and v6. 2001, 2002, 2003, 2004, 2005, 2006). Lights / headlight (replace bulb). Nissan altima specs for other model years. Buy used nissan headlight wiring harnesses. The wiring diagram is in nissan service manuals.

By